Eladó Családi ház Vác - Ösvény utca

100 m2Alapterület 4 Szoba
99 990 000 Ft Ár
395027Azonosító
További adatok

502 m2 Telek

Kertre néző Kilátás

Új Állapot

Tégla Szerkezet

8 m2 Erkély/terasz

Hőszivattyú Fűtés

Összkomfort Komfort

Saját garázs Parkolás

Tömegközlekedés

Amerikai konyhás

Van Kertkapcsolat

2026 Építés éve

Délnyugati Tájolás

Hitelkalkuláció – a részletekért kattintson valamelyik bank logójára!

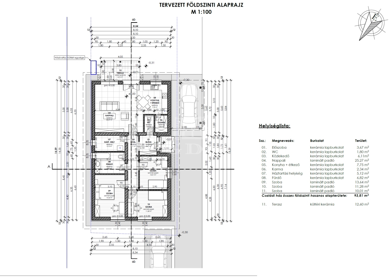
Vácon, a csendes és jól megközelíthető Ösvény utcában kínálunk eladásra egy 502 m²-es telken épülő új, kulcsrakész önálló családi házat, 93,81 m² nettó hasznos lakótérrel és 12,6 m²-es terasszal.

A beruházóval már több sikeres értékesítésben működtem együtt, számos referenciával rendelkezik, melyeket komoly érdeklődés esetén szívesen megmutatunk. Munkáját megbízható minőség és korrekt kivitelezés jellemzi.

A Porotherm 30 N+F téglából épülő tartószerkezeti falak, a betonkoszorú és a fa födémes tetőszerkezet hosszú távú stabilitást biztosítanak. A kiemelkedő hőszigetelésről 10 cm-es polisztirol lábazati, 12 cm-es grafitos homlokzati, valamint 30 cm-es ásványgyapot födémszigetelés gondoskodik.

A háromrétegű üvegezésű, hat légkamrás műanyag thermo nyílászárók kiváló hő- és hangszigetelést nyújtanak. A fűtést és melegvíz-ellátást energiatakarékos levegő–víz hőszivattyús rendszer biztosítja, amely a korszerű szigeteléssel együtt rendkívül alacsony energiaigényű működést tesz lehetővé.

A belső burkolatok, ajtók és szaniterek szabadon választhatók az alábbi értékhatárokig:

-Hidegburkolat: 5.000 Ft/m²
-Melegburkolat: 4.000 Ft/m²
-Beltéri ajtók: 50.000 Ft/db
-Fürdőkád: 40.000 Ft
-Csaptelepek: 15.000 Ft/db

Természetesen magasabb kategóriájú termékek is választhatók, az árkülönbség megtérítésével.

A részletes tervdokumentáció és műszaki tartalom érdeklődő ügyfeleink számára elérhető.

INGYENES hitel tanácsadás, CSOK Plusz, Otthon Start ügyintézés!
BANKFÜGGETLEN hitelcentrumunk az összes elérhető bank és hitelintézet ajánlatát versenyezteti az Ön kedvéért, ráadásul DÍJMENTESEN.

- Egyedi, bankfiókban nem elérhető kamat- és díjkedvezmények
- Hitelképesség vizsgálat
- Idő, energia és pénz megtakarítás
- Teljes hivatali ügyintézés

Amennyiben hirdetésem felkeltette az érdeklődését vagy egyéb információra van szüksége hívjon bizalommal!
Dr. Nagy-Samu Ágnes

Dr. Nagy-Samu Ágnes

Hívjon bizalommal

+36-20-268-Mutasd!

További hirdetéseim

Ingatlaniroda
GDN Ingatlanhálózat - Korzó Ingatlaniroda
+36 20 910 6674

Küldjön üzenetet

Visszahívást kérek

Hasonló ingatlanok