Eladó Lakás (téglaépítésű) Törökbálint - Törökbálint, Ófalu peremén

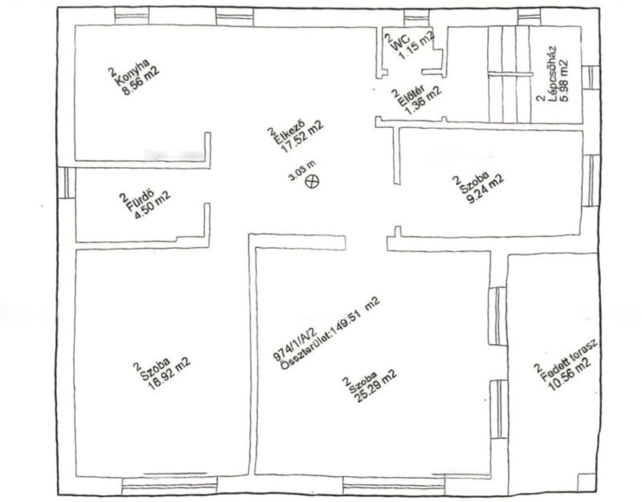
86 m2Alapterület 4 Szoba
118 000 000 Ft Ár
393920Azonosító
További adatok

104 m2 Telek

Utcai Kilátás

Felújított Állapot

Tégla Szerkezet

10 m2 Erkély/terasz

Gáz (cirkó) Fűtés

Dupla komfort Komfort

Saját beálló Parkolás

Emelet 1

Nincs Lift

Tömegközlekedés

Amerikai konyhás

Van Kertkapcsolat

1996 Építés éve

Délnyugati Tájolás

Hitelkalkuláció – a részletekért kattintson valamelyik bank logójára!

TÖRÖKBÁLINTI OTTHON, AMI NEM KÉR KOMPROMISSZUMOT

Van az a pont, amikor már nem csak egy lakást keresel, hanem egy helyet, ahol minden a helyén van. Ez az ingatlan pontosan ilyen.

Törökbálint csendes, mégis jól megközelíthető részén kínáljuk ezt a 86 négyzetméteres, átgondoltan felújított téglalakást, amely valódi otthonérzetet ad már az első pillanatban.

A térérzet azonnal érezhető. A több mint három méteres belmagasság és a világos terek olyan nyitottságot adnak, amit kevés hasonló ingatlan tud.

Az elrendezés a mai élethez igazodik
amerikai konyhás nappali, ahol együtt lehet a család
három külön nyíló szoba, amelyek valóban használhatók
külön gardrób, ami rendet teremt a mindennapokban
külön WC a kényelmesebb hétköznapokért

Ami viszont igazán megkülönbözteti ezt a lakást a piacon, az a fenntarthatóság. A teljes rezsi mindössze havi húszezer forint körül alakul, ami ma kivételesen ritka. Ez nem csak most előny, hanem hosszú távon is komoly érték.

A komfort minden évszakban adott
gázkazán biztosítja a stabil fűtést és melegvizet
hűtő fűtő klíma gondoskodik a kellemes hőmérsékletről

És ami igazán élhetővé teszi
saját, 104 négyzetméteres udvar, ahol van tér levegőt venni
erkély, ami tényleg használható, nem csak papíron létezik
nagy méretű pince, benne egy külön hangszigetelt helyiséggel, ami lehet dolgozószoba, hobbitér vagy akár saját stúdió

A környék nyugodt és barátságos, miközben minden fontos dolog elérhető távolságon belül van. Ez az a kombináció, amit sokan keresnek, de kevesen találnak meg.

Irányár 118.000.000 Ft

Ez az ingatlan nem akar többnek látszani, mint ami. Egyszerűen csak jól működik. És pont ezért érték.

Ha olyan otthont keresel, ahol a számok és az érzés is stimmel, akkor ezt látni kell.
Dr. Nagy-Samu Ágnes

Dr. Nagy-Samu Ágnes

Hívjon bizalommal

+36-20-268-Mutasd!

További hirdetéseim

Ingatlaniroda
GDN Ingatlanhálózat - Korzó Ingatlaniroda
+36 20 910 6674

Küldjön üzenetet

Visszahívást kérek

Hasonló ingatlanok