Eladó Családi ház Budapest XXI. kerület - Badacsonyi út

95 m2Alapterület 3 + 2 Szoba
84 000 000 Ft Ár
394275Azonosító
További adatok

578 m2 Telek

Udvari Kilátás

Felújítandó Állapot

Vegyes falazat Szerkezet

20 m2 Erkély/terasz

Gáz (cirkó) Fűtés

Összkomfort Komfort

Utcán, közterületen Parkolás

Tömegközlekedés

Amerikai konyhás

Van Kertkapcsolat

1985 Építés éve

Hitelkalkuláció – a részletekért kattintson valamelyik bank logójára!

ELADÓ KÉT VAGY TÖBB GENERÁCIÓ SZÁMÁRA IS ALKALMAS INGATLAN CSEPELEN!

95 nm, 3+2 szoba, 84 MFt.

Budapest XXI. kerületében, Csepel - Királyerdő városrész csendes kis utcájában – a Badacsony úton - helyezkedik el az ingatlan. Pár perc sétával elérjük a 152-es és a 71-es buszok megállóit. A környék igen kedvelt családi házas övezetben helyezkedik el.

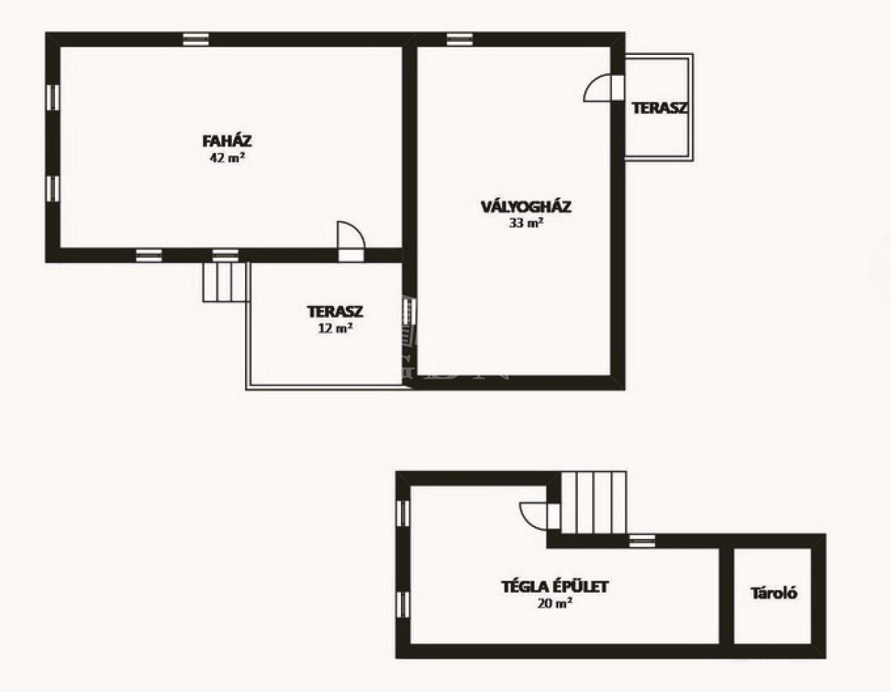
Az 578 nm-es telek területen található egy ikerház (egyik fele egy téliesített, szigetelt jó állapotú faház, a másik egy vályog építésű, közepes állapotú ház) és egy különálló téglaépület. A teljes terület egy hrsz-on van, az épületek, osztatlan közös területen találhatóak, ügyvédi megosztással. Az utcáról – jelenleg – egy közös bejáraton keresztül tudunk a telekre bemenni.

FŐBB JELLEMZŐK:
Faház:
A 2003-ben épült, jó állapotú, téliesített faház 48 nm-es, melyhez tartozik egy 12 nm-es terasz. Az ingatlan rendelkezik amerikai konyhás nappalival, 2 hálószobával és egy zuhanyzós WC-s fürdővel. A ház 2019-ben kapott egy 10 cm-es kőzetgyapot szigetelést.
Néhány éve több pontos bejárati ajtót és új műanyag ablakokat építettek be, mindegyik ablak szúnyoghálós. Az ingatlannak van padlástere is, mely nem beépíthető.

Faház teljes mérete: 42 nm + a terasz fele 6 nm =48 nm
- Amerikai konyhás nappali 21 nm
- Szoba: 7,6 nm
- Szoba: 7,6 nm
- Fürdőszoba: 3 nm
- Közlekedő: 2,5 nm
- Terasz: 12 nm
Belmagasság: 2,34 m

Vályogház:
A teraszról tudunk belépni a 33 nm-es ingatlanba, melynek beton aljzat a megerősítése. Először az előtérbe jutunk. Jobbra a WC-vel is ellátott fürdőszobát találjuk, majd tovább haladva a konyhába léphetünk. A konyhából tudunk a délnyugati tájolású szobába bemenni, melynek ablaka a faház teraszára néz.
A faházhoz közvetlenül kapcsolódik a vályogház, így régebben volt egy átjárási lehetőség, mely jelen pillanatban nincs meg, de igény esetén nagyon praktikusan vissza állítható. A konyha falát üvegtéglával (felette áthidaló van) rakták ki, mely tökéltesen átengedi a fényt. A vályogházhoz tartozik egy összefüggő téglából épült műhely épület, mely 3 részből áll és összesen kb: 20 nm. A házba hamarosan egy hűt/fűt klíma kerül beépítésre. A ház kéménye bélelt. A 2 ház közös tetőszerkezete rendben van.

Vályogház teljes mérete: 33 nm + a terasz 2 nm
-előtér: 1,5 nm
-szoba: 20 nm
-fürdőszoba: 2 nm
-konyha: 8,8 nm

Tégla ház:
A főépület mellett található, egy teljesen különálló, közepes állapotú 20 nm-es tégla építésű ház. Helyiségei: Előszoba, 1 szoba, fürdőszoba WC-vel és konyha. A szobában hatalmas 60 cm mélységű gardróbszekrény található. A konyhabútor méretre csináltatott.

Tégla építésű ház: 20 nm
- Szoba: 8 nm
- Fürdőszoba: 3 nm
- Konyha és az előtér: 8,8 nm

MŰSZAKI FELSZERELTSÉG:
A szigetelt faház fűtését elektromos rendszer látja el. Igény esetén kandalló kialakítható, de kémény bélelés kell. A főzéshez gázpalackot használnak. A tégla építésű házban konvektoros fűtés van, igény esetén a gáz innen átvezethető a telken lévő épületekbe. A rezsit mindegyik házban külön mérőórák mérik. Mindkét ingatlan (faház és a téglaház) fürdőszobájában található mosógép kiállás, mindhárom lakrészben villanymelegítő és villanybojler is van a fürdőszobákban. A vályogház fűtését a hamarosan beszerelésre kerülő klíma rendszer adja, a főzés itt is gázpalack segítségével történik. Ebben a lakrészben külön mérhető a víz és a villanyfogyasztása, a műhely külön áramkörön van.
A kert locsolásához fúrt kút használható. Közös költség nincs, a rezsi mérőórák alapján fizetendő. A tégla építésű ház mellett tároló lett kialakítva, alatta pince van.

PARKOLÁS:
A ház előtti terület kényelmes parkolást biztosít. Igény esetén beállási lehetőség kialakítható telken belül.
Dr. Nagy-Samu Ágnes

Dr. Nagy-Samu Ágnes

Hívjon bizalommal

+36-20-268-Mutasd!

További hirdetéseim

Ingatlaniroda
GDN Ingatlanhálózat - Korzó Ingatlaniroda
+36 20 910 6674

Küldjön üzenetet

Visszahívást kérek

Hasonló ingatlanok